0834-6863677
27560942@qq.com
四川嘉华锦屏特种水泥
有限责任公司
网站首页
关于我们
工程展示
新闻资讯
人才招聘
在线留言
联系我们
携手客户 共创双赢
拼搏 创新 和谐 高效
合作热线:0834-6863677
联系我们 →
网站首页
—
公示公告
—
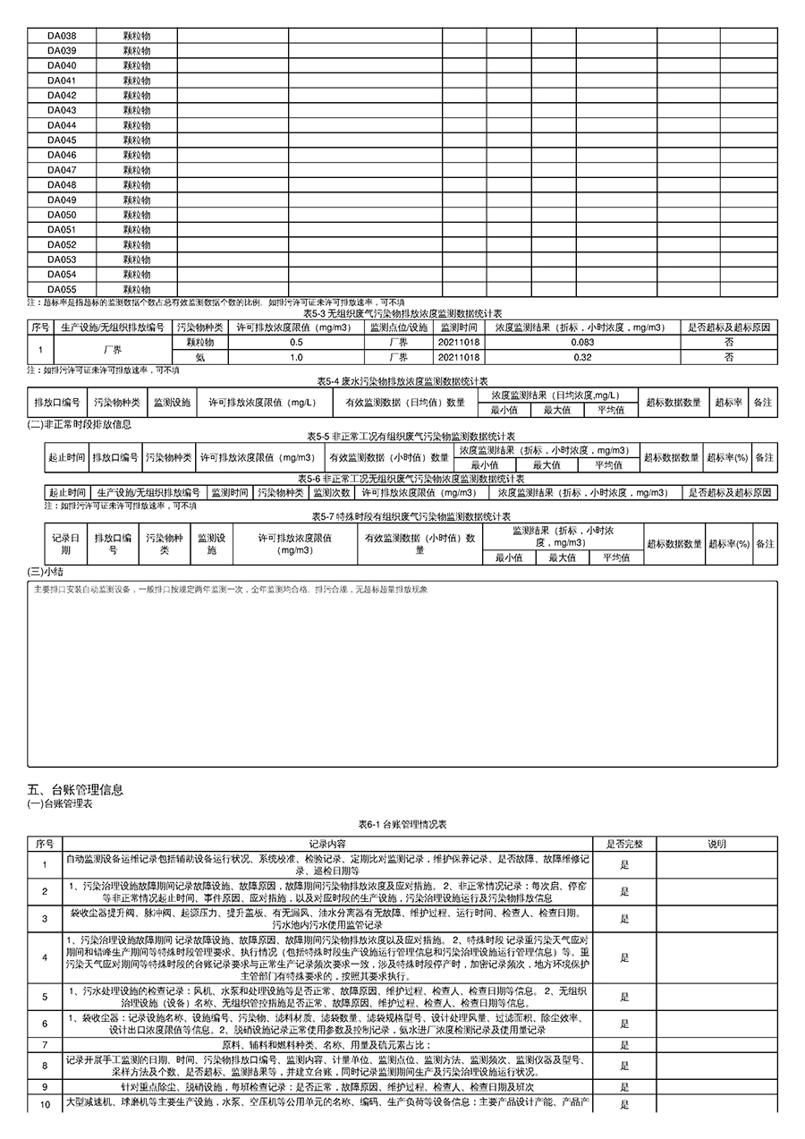
2021年度排污许可证执行报告
新闻资讯
公示公告
公司新闻
最新活动
行业资讯
2021年度排污许可证执行报告
来源:
|
作者:
tpl-cdf9757
|
发布时间:
2022-04-18
|
8150
次浏览
|
🔊
点击朗读正文
❚❚
▶
|
分享到:
上一篇:
2022年度一季度监测报告
下一篇:
2021年年度自行监测报告